This page is a record of a written work relating to Fremantle.
- Part of:
- Title: Fremantle Park building plans
- Authors:
- Published:
- Reference URL: https://freopedia.org/Fremantle_Park_building_plans
- Tags:
- Authority control:
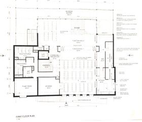
Architectural plans for the Fremantle Park Centre, c.2022
No further source information was provided.
Freotopia
This page incorporates material from Garry Gillard's Freotopia website, that he started in 2014 and the contents of which he donated to Wikimedia Australia in 2024. The content was originally hosted at freotopia.org/park/plan.html, and has been edited since it was imported here (see page history). The donated data is also preserved in the Internet Archive's collection.